※土地の大きさ 間口13m 奥行き25m
※接道 南道路
※階数 2階建て
※建物の規模
34坪(要望は30~32坪)
※必要な部屋
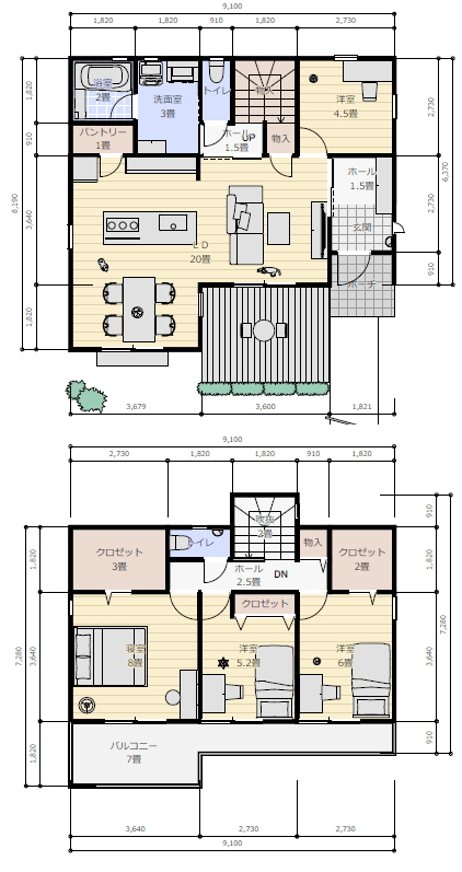
建物は2階建て
1階にLDKと4.5畳の和室か洋室一室欲しいです。
二階には収納付き子供部屋2室と、
寝室が1室ウォークインクロゼットが欲しいです。
間取の要望
南側か東側にバルコニーが欲しいです。
キッチンは対面キッチン。
洗面所は3畳ほしいです。
LDKにリビング収納一畳と、
キッチン付近にパントリーがほしいです。
庭は砂利と芝生と目隠しフェンスで
作成していただきたいです。
外観はシンプルモダンで片流れ屋根で
作成していただきたいです。
※家族構成
家族は4人で夫婦と子供が2人です
