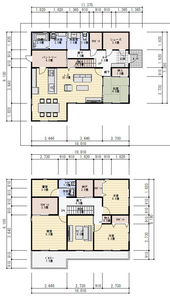
敷地の大きさ:東道路 13M×18M
建物の規模: 46坪 4LLDK
2階建て
必要な部屋:
1階
玄関ホール 4畳
シューズクローク 3畳
クロゼット1.5畳
リビングダイニングキッチン 20畳
パントリー収納 4畳
和室4.5畳 押入れ
洗面室 1.5畳
脱衣室2畳
浴室 2畳
トイレ 1.5畳
階段下収納
2階
寝室 8 ウォークインクロゼット 3畳
洋室 6畳 クロゼット ×2室
洗面室 トイレ
納戸 2畳
書斎 3畳
セカンドリビング 6畳
間取りの要望:
玄関にはシューズボックスとシューズクロークを設ける。
シューズクロークは3畳と広いスペースにする。
シューズクロークは玄関土間と玄関ホールから出入りができる。
玄関付近にウォークインクローゼットを設ける。
リビングダイニングキッチンは対面式キッチンにしてパントリー収納を設ける。
パントリー収納は広くして勝手口をつくる。
和室4.5畳リビングに接して配置する。
和室には押入れを作る。
洗面室と脱衣室は別にする。
トイレは洗面室の横に配置する。
階段は独立階段で2階上がる。
2階に書斎を設ける。
2階に洗面台とトイレを作る。
2階に共用の納戸を設ける。
寝室には広いウォークインクローゼットを作る。
扉で仕切ったセカンドリビングを2階に設ける。
子供部屋の洋室は各部屋別にしておく。
寝室からバルコニーに出られるようにする。
セカンドリビングからもベランダに出るのがベスト。
間取りは長方形もしくは正方形にして
屋根はシンプルになるようにする。
雨漏りするような複雑な形状は避ける。
玄関は東側に設ける。
東側に並列で駐車したい。
家族構成:夫婦 2人 子供2人
46坪4LDK間取りシミュレーション
