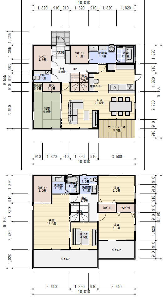
敷地の大きさ:北道路 12.5M×20M
建物の規模: 45坪 5LDK
2階建て
必要な部屋:
1階
玄関ホール 3畳
シューズクローク 3畳
リビングダイニングキッチン 20畳
和室6畳 押入れ 1畳 床の間
家事コーナー 1畳
洗面脱衣室3畳 ファミリークロゼット 2畳
トイレ 1.2畳
浴室 2畳
階段下収納
2階
寝室 11畳 ウォークインクロゼット 3畳
寝室専用 脱衣室 シャワーユニット
洋室 6畳 クロゼット ×2室
セカンドリビング 4.5畳
洗面室 トイレ
間取りの要望:
玄関に広いシューズクロークを設ける。
シューズボックスはまた別に欲しい。
玄関付近に手洗いカウンター付きのトイレを作りたい。
階段は独立階段で2階へ上がる。
洗面脱衣室は広くして収納を作りたい。
洗面脱衣室の横にファミリークローゼットを設けて
服やタオルや洗剤などを収納しているリネン庫として使いたい。
お風呂はユニットバスで一坪タイプのものにする。
キッチンは対面式でキッチン脇に家事コーナーを作りたい。
家事コーナーは作り付けのカウンターにする。
和室はリビングの横に配置するようにして
引き戸を開放するとリビングと一体化するような配置にしたい。
和室には押入れと床の間を作りたい。
寝室はウォークインクローゼットを設ける。
寝室に接して洗面とシャワーブースが欲しい。
できれば小さなユニットバスを作りたい。
子供部屋の想定の洋室は6畳が2室でそれぞれ別の部屋にしたい。
セカンドリビングは廊下からと寝室からと出入りできるようにして
とくに寝室から使えるようにしたい。
寝室には引き戸を開放して一体化できるようにしたい。
2階には洗面室とトイレを設けて
1階のトイレが使われている時でも2階で使うことができるようにしたい。
寝室の南側には広いバルコニーテラスが欲しい。
またリビングセカンドリビングからもバルコニーテラスへ出れるようにしたい。
ダイニングの南側にウッドデッキテラスを設けて外に出れるようにしたい
家族構成:夫婦 2人 子供2人
45坪5LDK間取りシミュレーション
