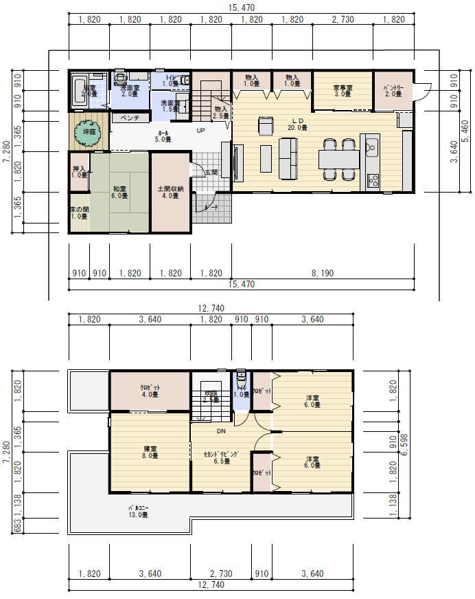
敷地の大きさ:: 南道路 18M×15M
建物の規模: 45坪 4LDK
2階建て
必要な部屋:
1階
親世帯 2LDK
玄関ホール 4畳
土間収納 4畳
リビングダイニングキッチン 20畳
和室 6畳 押入れ 床の間
洗面室1.5畳 脱衣室 2畳 浴室 1坪
家事室 3畳
パントリー収納 2畳
リビング収納 2畳
トイレ 1畳
階段室
2階
セカンドリビング 6畳
寝室 8畳 ウォークインクロゼット 4畳
洋室 6畳 クロゼット 1畳 2室
トイレ 1畳
間取りの要望:
玄関に広い土間収納がある.
シューズボックスもある.
南側玄関にする.
和室は独立して配置する。
和室から坪庭見えるようにする。
広めの廊下から坪庭が見える。
廊下にベンチが欲しい
浴室からも庭が見える。
洗面脱衣室は別にしたい。
洗面脱衣から出たところに
ちょっとした休憩スペースが欲しい。
リビングダイニングキッチンを広くしたい。
リビング収納をつけて片付けられるようにしたい。
ダイニング脇に家事室を設ける。
家事室は引き戸で開放して LDK オープンにすることもできる
キッチン横にパントリー収納を作る。
子供部屋将来仕切るタイプにする。
2階にセカンドリビングをつけて
そこから各ベッドルームに出入りする。
寝室からバルコニーへ出るようにする。
ウォークインクローゼットを広くする。
階段は折り返し階段で踊り場を作る。
階段は独立階段で2階上がる。
家族構成:夫婦 2人 子供2人
45坪間取りシミュレーション
