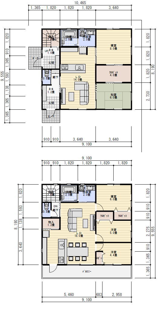
敷地の大きさ:東道路 14M×16M
建物の規模: 45坪 2LDK+3LDK
完全分離型二世帯住宅 2階建て
必要な部屋:
1階
親世帯
玄関ホール 3畳
リビングダイニングキッチン 14畳
寝室 8畳
和室 6畳
ウォークインクロゼット 4畳
洗面脱衣室 2畳 浴室 1坪 2畳
トイレ 1畳
子供世帯
玄関ホール 2.5畳
階段室 階段下収納
2階
リビングダイニングキッチン 18畳
寝室 6畳 クロゼット 1畳
洋室 5畳 クロゼット
洋室 4.5畳 クロゼット
洗面脱衣室 2畳
浴室 1坪 2畳
トイレ 1畳
パントリー収納 1.5畳
間取りの要望:
一階と二階で完全分離の2世帯住宅の間取りにする。
1階は親世帯の住宅にして2階部分を子供世帯の住宅にする。
一階部分に子供世帯の玄関を設け階段で2階へ上がる形にする。
親世帯のリビングは小さくても構わない。
寝室は8畳の大きさにして東窓が取れるような配置にする。
和室6畳を南側に配置して和室はリビングに隣接する。
リビングに対して引き戸を開放して開く。
ウォークインクローゼットは和室と寝室両側から使うようにする。
子供世帯の水回りと親世帯のは水回りは同じ位置に配置する。
2階のリビングダイニングキッチンは広くする。
1階も2階もキッチンは対面式キッチンにする。
2階のキッチンにはパントリー収納を設ける。
リビングダイニングキッチンは南に窓を設け係部屋にする。
子供部屋と寝室は東窓がある配置にする。
できるだけ廊下のないプランにして無駄のないスペースにする。
総二階の間取りにしてコストをかけないようにする。
リビングを通って子供部屋に行くような配置にして
家族とのコミュニケーションを濃厚にする。
家族構成:
親世帯夫婦
子供世帯夫婦 2人 子供2人
間取りシミュレーション完全分離二世帯住宅
