間口8.6M 奥行き22Mと21.4M(台形地)
土地面積175.50㎡、約52.99坪
接道 南道路
階数 2階建て
建物の規模 41坪(要望は35〜40坪程度)
必要な部屋
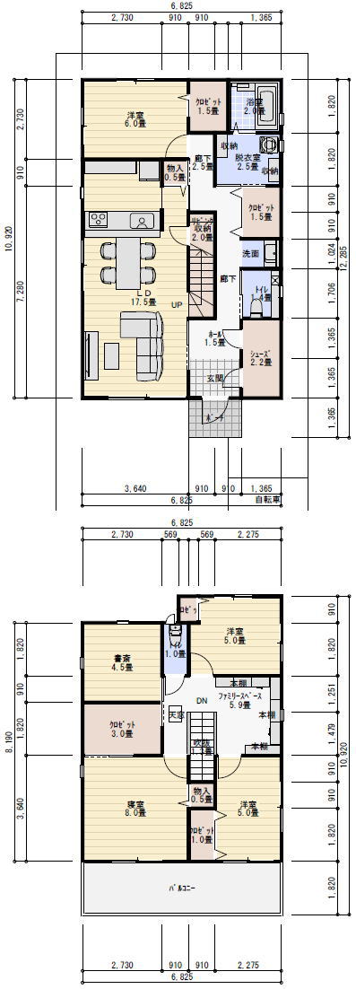
1階LDKは18畳以上で、
歳をとった時用に1階に一室欲しいです。
2階は夫婦の寝室ひと部屋8畳程度、
子ども部屋2部屋5〜6畳、
夫の趣味の部屋(洋室)ひと部屋4畳程度、
残りの空間は本棚が置け、
子どもが勉強出来るようなファミリースペースが欲しいです。
間取りの希望
車3台と自転車3台程度を駐車するスペースが欲しいです。
玄関に土間収納が欲しいです。
リビングをスッキリ見せたいので、
リビングクローゼットが欲しいです。
階段はリビングイン階段を希望します。
子どもが帰ってきてすぐ荷物を置いて手を洗いに行ける動線がありがたいです。
洗面室と脱衣室は分けたいです。洗濯はドラム式洗濯機で乾燥まで行うので、
近くに洗ったものを収納できるクローゼットが欲しいです。
また、脱衣室に下着やタオルなどを収納したいです。
キッチンは対面で、冷蔵庫を食卓近くに配置したいです。
子どもがまだ小さいので、
ベビーゲートで侵入できなくできるとありがたいです。勝手口は不要です。
子ども部屋は最初から壁が欲しいです。
夫は趣味でNゲージを集めていて、
子どもに邪魔されずNゲージが出来る部屋が欲しいそうです。
わたし(妻)は本(小説・漫画・専門書)が1000冊以上あるので、
蔵書を子どもたちも読めるように、ファミリースペースが欲しいです。
家族構成
夫婦と子ども1人(0歳)ですが、
これからも子どもを儲け、最大2人〜4人と考えています。
