娘も間取りチャンネルYouTubeの大ファンで
他の間取りも見てみたいと申しておりました。
私も同じ意見です。
動画でボヤいてもらっても構いません。
どうぞよろしくお願いします!
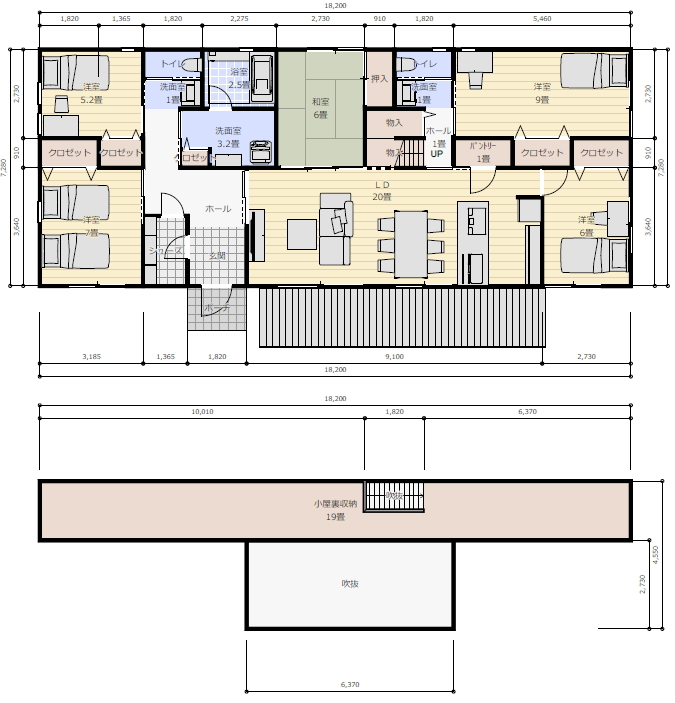
土地718.40㎡(217坪)
間口20.880M
南道路
西側にも小川と道路
東側にも小さな道路
平家で40坪程度5LDK希望
両親の部屋1つ
夫婦の部屋2つ
和室
ゲストルーム1つ
南玄関
土地が広いので横長長方形の建物に切妻屋根
駐車場はまだ決めておりません。
LDK広め南面に横並びのキッチン
キッチンから大きな窓から見えるパノラマ風の庭とTV、和室が見える様に
リビング上は勾配天井
和室は小上がりで襖で仕切れる様に
両親の部屋は独立していて近くにトイレと洗面台(引き戸)
夫婦の部屋はそれぞれ2つ
夫の部屋は広め
キッチン横はパントリー
階段から屋根裏収納
玄関はシューズクローク
トイレ2つ
浴室1.25坪
洗面所、脱衣所別で脱衣所広めで部屋干しスペースと収納棚
出来ればドアから外干しスペースに出れる(ウッドデッキ)
以上要望がたくさんですがどうぞ宜しくお願いします!!!
