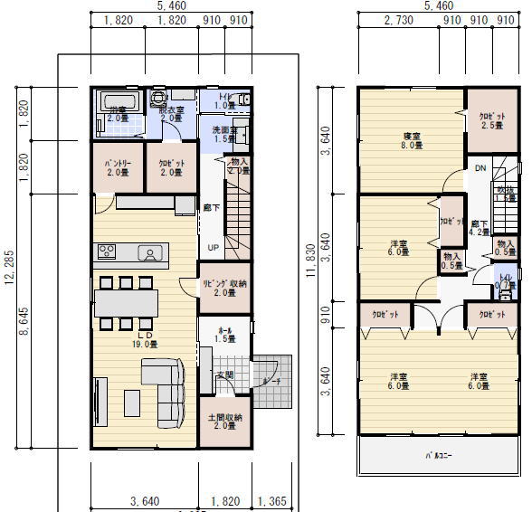
敷地の大きさ:南道路 8.2M×20M
建物の規模: 40坪 4LDK 2階建て
必要な部屋:
1階
LDK 19畳
パントリー収納 2畳
リビング収納 2畳
玄関ホール 3畳
土間収納 2畳
洗面室1.5畳
脱衣室2畳
バスルーム2畳
トイレ 1畳
ファミリークロゼット2畳
階段室
2階
寝室 8畳 ウォークインクロゼット 2.5畳
洋室 6畳 クロゼット 1畳 ×2室
(当初12畳)
洋室 6畳 クロゼット
トイレ1畳
物入れ
バルコニー
間取りの要望:
玄関に土間収納を作る
リビングダイニングは家族5人で使える広さが欲しい。
リビングに接してリビング収納が欲しい。
キッチンのそばにパントリー収納が欲しい。
洗面脱衣室は別にしたい。
リビング階段ではないがリビングを経由してから
2階へ上がる間取りにしたい。
洗面室に接してファミリークロゼットが欲しい。
2階の廊下に共用の物入れを作りたい。
子供部屋のうち2室は最初は同じ部屋で後亜kら仕切れるようにしたい。
広いバルコニーが欲しい。
寝室にヲークインクロゼットが欲しい。
トイレは1階と2階に2か所欲しい。
家族構成: 夫婦 子供3人
