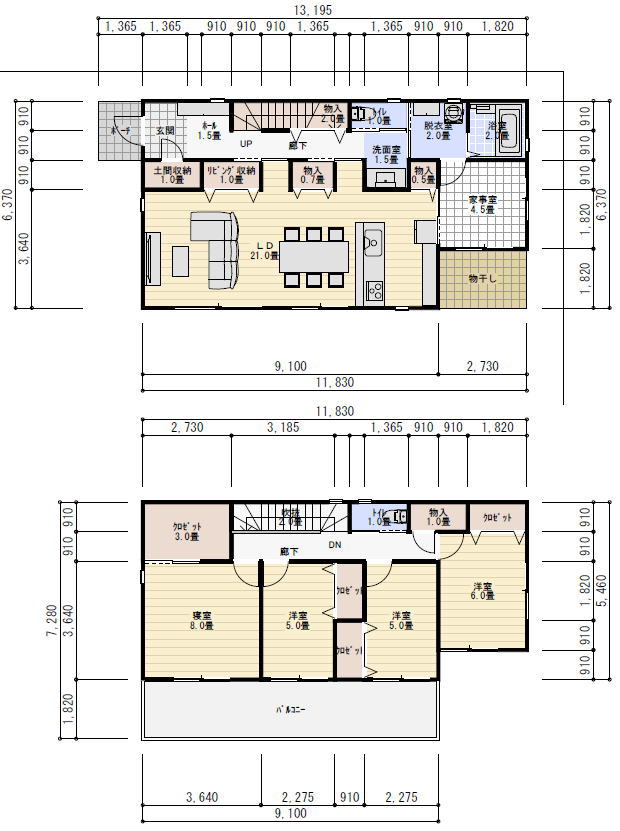
敷地の大きさ:東道路 12M×19M
建物の規模: 40坪 5LDK
2階建て
必要な部屋:
1階
玄関ホール 3畳
土間収納 1畳
リビングダイニングキッチン 21畳
リビング収納 1畳
リビング収納
家事室4.5畳 物入れ
洗面室1.5畳 脱衣室 2畳
トイレ 1畳
階段室 階段下収納
2階
寝室 8畳 ウォークインクロゼット 3畳
納戸 1.5畳 共用物入れ
洋室 5畳 クロゼット ×2室
洋室 6畳 クロゼット
トイレ 1畳
物入れ
間取りの要望:
西側に玄関を配置する。独立階段で2階上がる。
玄関にはシューズボックスと土間収納を設けて収納量を増やす。
洗面室と脱衣室は別にする。
洗面台は1 M 20 CM の広い洗面台にする。
脱衣室には収納スペースを作って着替えやタオル
洗剤などを入れるようにする。
脱衣室につながる家事室を設けて
家事室で物干しができるようにする。
家事室にはキッチンからも通り抜けられるのがベスト。
家事室の南には屋外の物干しを作って
家事室から外に出られるようにする。
家事室はマルチに使える広い部屋にする。
キッチンは対面式にしてダイニングと
リビングを眺められるようにする。
勝手口はいらない。
リビングにはリビング収納をもうけて部屋を片付けられるようにする。
物入れのスペースはできるだけ多い方が良い。
リビングもダイニングも南に窓があって
庭に出れるような掃き出し窓を設ける。
2階の寝室からバルコニーテラスへ出れるようにする。
寝室には広いウォークインクローゼットつけて収納量を確保する。
子供部屋になるの洋室も全室南向きにして
南窓から明るい光を入れられるようにする。
廊下には共用の物入れを作る。
トイレは1階と2階に2箇所る。
家族構成:夫婦 2人 子供2人
40坪5LDK間取りシミュレーション
