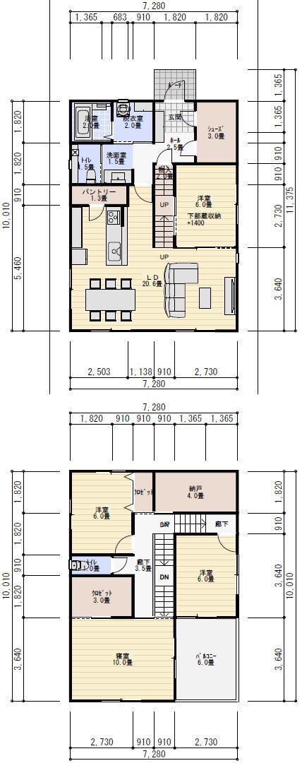
敷地の大きさ:: 北道路 9M×20M
建物の規模: 40坪 4LDK
2階建て
必要な部屋:
1階
玄関ホール 3畳
シューズクローク 3畳
パントリー収納 1.5畳
リビングダイニングキッチン 20畳
洋室6畳
蔵収納
洗面室1.5畳 脱衣室 2畳 浴室 1坪
トイレ 1.5畳
階段室
2階
寝室 10畳 ウォークインクロゼット 3畳
洋室 6畳 ロゼット 1畳
洋室 6畳 クロゼット なし
トイレ 1畳
納戸 4畳
間取りの要望:
シューズクロックは3畳と広くする。
シューズクロークは玄関土間からとホールから出入りが出来る。
階段下収納にする。
洗面室と脱衣室は分ける。
トイレは手洗いカウンター収納を設けて広く作る。
キッチンは対面式にする。
キッチンの脇にパントリー収納を設ける。
スキップフロアのある間取りにする。
スキップフロアの下は蔵収納にする。
半階上がったところに洋室を設ける。
この洋室は収納がなくて良い。
リビングから滅入る位置
リビングダイニングキッチンは20畳にして広くする。
ダイニングとリビングのところは庭に出れるように大きな窓をつける。
2階に広い共用の納戸もつくる。
寝室は広く作る。
寝室にはウォークインクローゼットをつける。
寝室から出るバルコニーテラスは机が置けるほどの広さにする。
2階にもトイレをつける。
子供部屋は2室あれば良い。
駐車場は並列駐車で止めるようにする。
家族構成:夫婦 2人 子供2人
40坪4LDK間取りシミュレーション
