※土地の大きさ 間口12M 奥行き20M
※接道 西道路
周辺状況 西道路は生活道路でほぼ隣人しか通らない
東側は畑
北側と南側は宅地
※用途地域 わからない
壁面後退 わからない
※階数 2階建て
※建物の規模 40坪
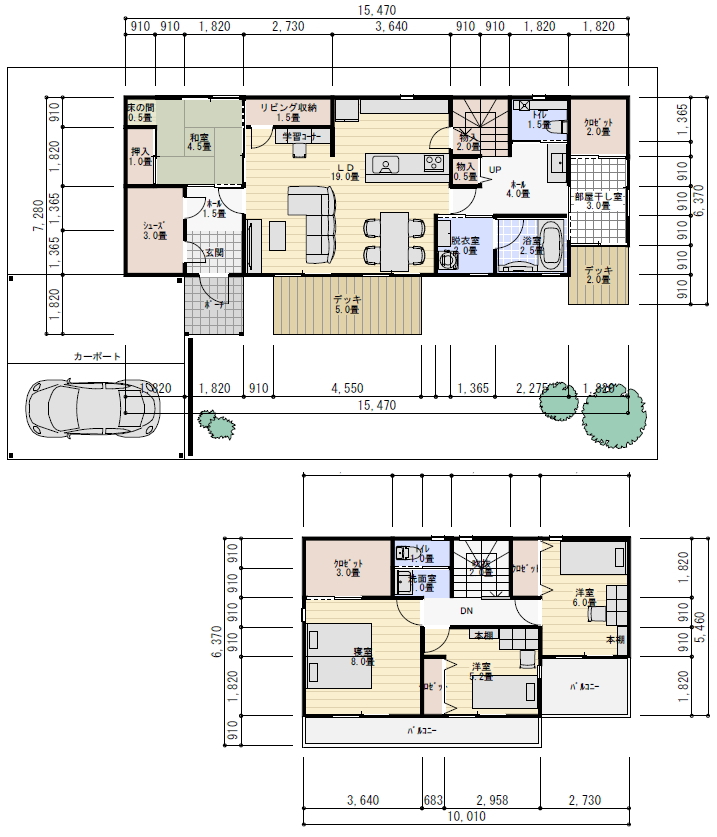
※必要な部屋
1階
LDK、和室、お風呂、ファミリークローゼット、
トイレ、(洗面所・脱衣所・サンルーム)
2階
夫婦の寝室、子供部屋2つ、トイレ
間取の要望
①階段はLDKスペースにいったん入ってから
階段を上がるのが第1希望。
玄関から直接階段を上がるのが第2希望。
いわゆるリビング階段は冬寒いので不可。
②キッチンは対面キッチンにしたい。
料理しながらリビングのテレビや子供に視線が届くように。
余分の収納があるのはいいが、人が入るタイプのパントリーは不要。
③洗濯 1階で完結させたい。
洗面前の支度と洗濯動線ができるだけ重ならないようにしたい。
洗濯物がキッチン内を通過しないようにしたい。
室内干しが多いので、サンルームがほしい。
以上がそろっていれば
洗面所・脱衣所・サンルームがどのように組み合わさっていても可。
洗面台・洗濯機・室内干しスペースが確保できればいい。
④和室は4.5畳以上。孤立せず、どこかの部屋に続くようにしたい。
⑤寝室は洋室。つけることができればクローゼットか押し入れ。
収納は部屋の外(階段ホールとか)にあっても可。
⑥子供部屋にクローゼットはほしい。
後は本棚(これは造り付けでも可)
とベッドと勉強机が置ければ狭くても可。
⑦駐車場は2台以上。
・布団はベランダに干す予定(各部屋から出られなくても、
1カ所から出られたら可。ホールからでも)
無理を言えば
・脱衣所がLDKと連続する方がLDKからの暖気が利用できるので助かる
・駐車場から雨に濡れないように玄関か裏口に入れたら最高
※家族構成 夫婦2人。子供は2人の予定。
