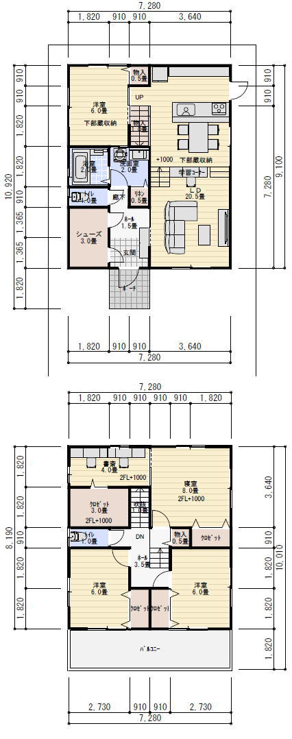
敷地の大きさ: 南道路 9.5M×17M
建物の規模: 38坪 4LDK 木造二階建て
必要な部屋:
1階
LDK 20畳
洗面脱衣室2畳 浴室2畳
トイレ 1畳
玄関ホール シューズクローク 3畳
洋室6畳 収納
蔵収納 18畳
2階
寝室 8畳 書斎4畳
ウォークインクロゼット 3畳
洋室 6畳 クロゼット ×2室
トイレ1畳
間取りの要望
玄関に広いシューズクロークが欲しい
ダイニングの下を蔵収納にしたい
リビングとダイニングをスキップフロアでエリア分けしたい。
リビングの一角に学習コーナーカウンタが欲しい
寝室に書斎コーナーが欲しい
できれば書斎と寝室は扉で仕切りたい。
南側に子供部屋を配置したい。
リビング騎亜弾で2階へ上がりたい。
南が和玄関
キッチンは対面式のキッチンでLDKを見渡せる。
家族構成: 夫婦 子供2人
