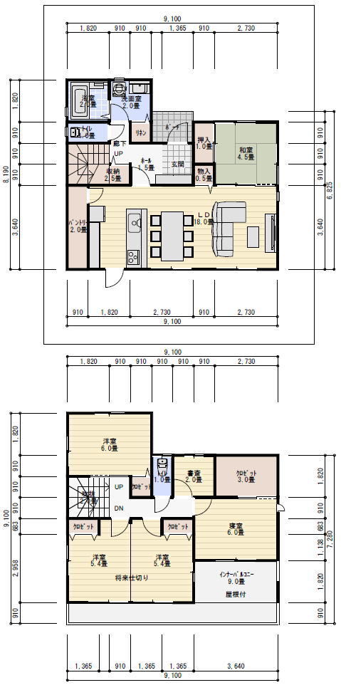
土地の大きさ
間口11.69m 奥行き14.67m
接道 北道路 左右、後ろは住宅
用途地域 第2種中高層専用
避面後退 おおよそ1m
階数 2階数プラス屋根裏収納
建物の規模 36.5坪(要望は36坪位)
必要な部屋数
・1階 LDK18畳位
4.5畳か6畳くらいの和室
(両親など泊まりに来た時に仕切れるように)
・2階
子供部屋クローゼット込みで6畳が3部屋で、
2部屋は将来間仕切りができるように
主寝室は6~8畳、出来たらバルコニーに繋がるように
2畳位の書斎(主寝室内でも良いが出来たら別部屋仕様に)
2階にもトイレ
間取り要望
簡単な風水は気にする
リビング階段で、
階段の位置はあんまり家族の空間を横切らない様な位置に欲しい
和室とリビングは繋がっていて、
キッチンから子供の様子が見える様にしてほしい
廊下は短く
できる限り収納は増やしたい
対面キッチン
キッチンの近くに出来るならパントリーを作りたい
バルコニーはインナータイプのバルコニーで、
基本は洗濯物や布団を干せる様にしたい
家事動線を大切にしたい
家の前に車を2台プラス来客用を横並び、
大型バイク1台(奥でもOK)を駐車するスペースを確保したい
