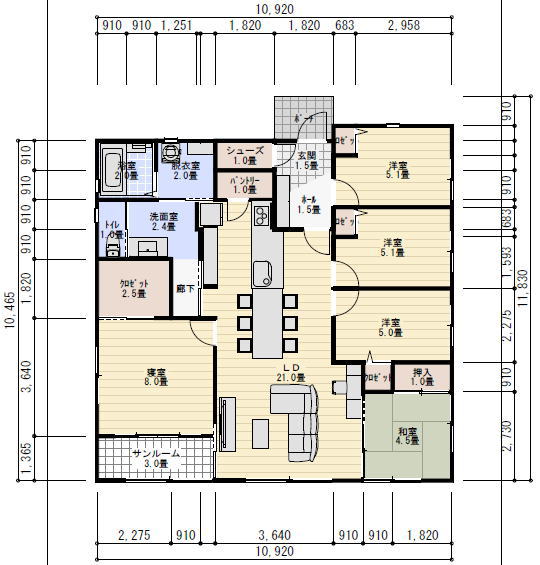
【土地の大きさ】 間口14M 奥行21M
【接道】 北道路(14M) 西道路(21M)
【階数】 平屋
【建物の規模】 36坪 要望はなるべく35坪までにおさめたい
【必要な部屋】 5LDK(和室1、洋室4)
【間取りの要望】
・トイレ(1つで良い)は玄関、
リビングに隣接しないようにしたい
・各部屋(狭くても良い)へは、廊下から行くようにしたい
・各部屋にそれぞれクローゼット(狭くても良い)が欲しい
・シューズクロークが欲しい
・ウォークインクローゼット(3~4帖くらい?)が欲しい
・LDKの広さはお任せで対面フラットI型キッチンにしたい
(出来たらダイニングテーブルがキッチンと横並び希望)
・パソコンコーナー(80~100㎝幅)が欲しい
・ランドリー(サン)ルーム(2.5~3帖くらい?)が欲しい
・パントリー(狭くても良い)が欲しい
・洗面所と脱衣所は仕切りたい(誰かが入浴中でも洗面所が使えるように)
※ 他、収納やウッドデッキ、庭など案があれば組み込ませていただけたら嬉しいです
※ 5部屋が無理そうで個室になるロフトができるのであれば、4部屋+ロフトでも構いません
【家族構成】 家族5人(夫婦+子供3人)
