※土地の大きさ 間口9.97M 奥行き17.87M
※接道 南道路
※用途地域
壁面後退
※階数 2階建て
※建物の規模 35坪程度
※必要な部屋
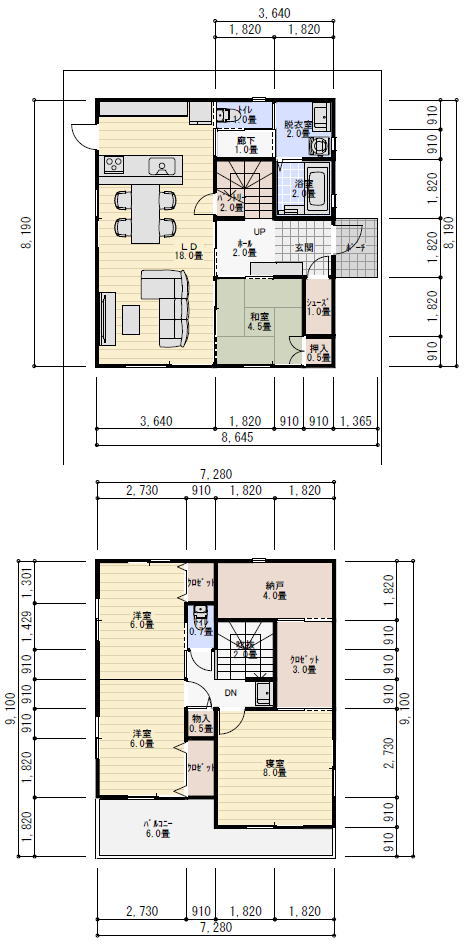
1階
LDK15畳以上
パントリー1~1.5畳
和室4.5畳
風呂
トイレ
洗面脱衣場
階段下収納
2階
主寝室6~8畳
主寝室の南面にバルコニー
子ども部屋6畳くらいを2部屋
納戸2~3畳くらい
トイレ
間取の要望
・カウンターキッチン
・独立階段で出来れば玄関の近く(少なくともリビングを通らなくて良いように)
・玄関に土間収納(小さくて可)
・脱衣場とリビング隣接
・リビングと和室隣接
・リビング南面の掃き出し窓から物干しデッキ
・和室に押入れ(小さくても可)
・子ども部屋のちに間仕切り出来るように
・主寝室に1.5~2畳のクローゼット
・子ども部屋にそれぞれ1~1.5畳のクローゼット
・2階のトイレ近くに洗面台
※家族構成
家族は3人で夫婦と子供が1人ですが、将来的に子ども2人の予定です。
