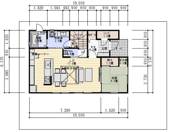
土地の大きさ:間口15M 奥行11M
接道:北道路
用途地域:第一種低層住居専用地域
壁面後退:不明
階数:総2階
建物の規模:32坪
必要な部屋:
1階
玄関横に0.5畳~1畳程度のシューズクローク
洗面脱衣場2.5畳~3畳
お風呂1坪
LDK16畳程度
リビング続きの4.5畳の和室
リビング上に吹き抜け(小さくても良いので少しでも解放感が欲しいです)
階段下収納
2階
子部屋5畳が2部屋(坪数的に厳しければ1部屋が5畳、
1部屋が4.5畳になっても良いです)
主寝室6.75畳に2.5畳程度のWIC
トイレ(手洗い付き)
2畳~3畳程度でも良いのでフリースペース
1畳程度の収納
間取りの要望:
回遊型間取り希望
対面キッチン
出来れば収納たくさん
リビング階段
階段はストレート階段でも可
家族構成:夫婦2人と子供1人です
