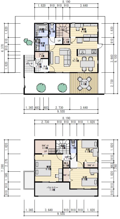
敷地の大きさ:西道路 10m×16m 旗竿地
建物の規模: 30坪 3LDK
2階建て
必要な部屋:
1階
玄関ホール 2畳
シューズクローク 1畳
リビングダイニングキッチン 16畳
書斎 4畳
洗面脱衣室 2畳
トイレ 1畳
浴室 2畳
パントリー収納
2階
洋室 5畳 クロゼット
洋室 6畳 クロゼット
寝室 8畳 ウォークインクロゼット 3畳
トイレ 1畳
間取りの要望:
壁で囲まれた庭を作る
玄関は西側から入りたい
リビングを通ってから階段を上がりたい
暖気が2階へ上がらないように仕切りはある
キッチンの横にパントリー収納が欲しい
1階に書斎4畳が欲しい
玄関に小さくて良いのでシューズクロークを作る
洗面脱衣室に収納スペースが欲しい
2階にもトイレを作る
寝室からバルコニーテラスへ出れるようにしたい
子供部屋を東側に配置したい
階段で上るロフト収納が欲しい
ダイニングの南側にウッドデッキのテラスが欲しい
キッチンは対面式キッチンにしたい
リビングもダイニングも南側の明るい光が入るようにしたい
書斎は北側でも良い
書斎をテレワークに使う
30坪以下に抑えたい
家族構成: 夫婦 2人 子供2人
