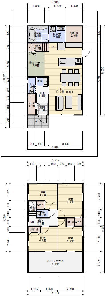
土地面積:間口15.6m(東西)奥行き9.2m(南北)
の四方を建物に囲まれた旗竿地
壁面後退:1.5m
接道:西(3.5m)※土地の南面から西にのびる
階層:2階
建物面積:30坪(要望は30坪予定)
必要部屋数:4部屋
間取りの希望:
①LDK20畳程度欲しい。(一部3畳のタタミコーナー)
②玄関が南入になると思うが、南面からの光を取り込みた
い。
③洗面を玄関から近い所に設けたい。
④対面キッチン。
⑤家事動線の繋がりがあって、
脱衣所を広くもしくはファミリークロークかWICが欲しい。
⑥シューズクロークも欲しい。
⑦2階の1室は将来間仕切りできるようにしたい。
(個室は最小限の広さで)
⑧風呂は1.25坪タイプ。
⑨随所に収納を多く取りたい。
家族構成:大人2人、子ども3人
