土地の大きさ/間口7.5m、奥行き13m
(傾斜地のため南側が1.2m、西側が0.7m下がってます)
設道/北道路(他三方向は住宅有り)
用途地域/一種低層住居地域
壁面後退/不明
階数/2階建て
建物の規模/30坪(要望は30坪)
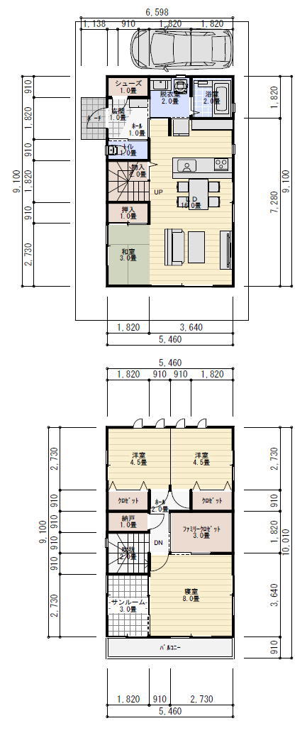
必要な部屋/
建物は27坪程度の2階建てで。
1階にリビングと水回り。
2階に4.5畳の子供部屋2室と主寝室、
ファミリークローゼットを。
間取り希望/
子供部屋は後から仕切れるように。
キッチンは対面式。
3畳の和室と室内洗濯干しスペースを。
リビング階段。
玄関にシューズクローゼット。
2階トイレ不要。
一台分の駐車スペースを。
風水気にします。
家族構成/夫婦、子ども二人(小学生)
27坪に収めたい場合
