※土地の大きさ 約38坪
※接道 北東6.25m、南東9.86m
※用途地域 一種中高層住居専用地域
※階数 2階建て
※建物の規模 延床30坪程度
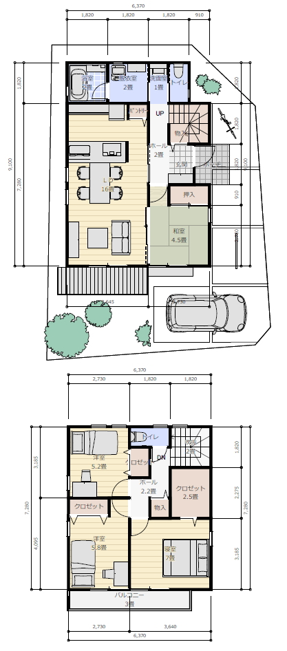
※必要な部屋 1階にLDK16畳以上、
LDKに接する形で4.5畳の和室が一室欲しいです。
キッチンにはパントリーを設けたいです。
2階には子供部屋5畳前後が2室と
夫婦の寝室が1室7畳前後と
3畳前後のウォークインクロゼットが欲しいです。
バルコニーは東面に3畳程度の広さのものを希望します。
間取の要望
北東と南東に接道していますが、
南東側にLDKを設けたいです。
キッチンは対面キッチンとし、
パントリーを設けたいです。
階段は廊下に配置したいです。
トイレは1階のみで2階は不要です。
駐車場2台分必要です。
(常時使うのは1台分もう1台分は普段は自転車バイク置き場とし、
来客時の駐車場としたい)
可能であれば洗面所と脱衣場は分けたいです。
※家族構成
家族は現状夫婦2人ですが将来的に子供が2人欲しいと考えています。
