※土地の大きさ
間口5454mm 奥行き9544.5mm
※接道
南東(右側)
左側は擁壁のため陽射し無し
※用途地域
第一種低層住居専用地域
第一種高度地区
絶対高さ制限10m
道路斜線制限
北側斜線制限
既に土地を購入済みで、現在更地の状態です。
2021年3月に引っ越したいと考えています。
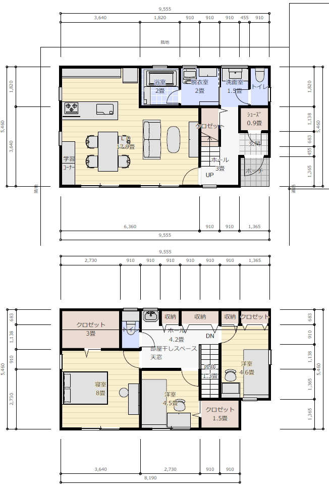
北側の母屋下りをうまく使えず悩んでおります。
※階数2階建て
※建物の規模30坪程度
※必要な部屋
バルコニーは無しを考えています。
庭はないので外に干すスペースはありません。
室内に干せるスペースが欲しいです。
建物や二階建て30坪くらいです。
LDKは一階でも二階でもどちらでも。
リビングイン階段は避けたいです。
リビングに子供の学習机2つを置きたいです。
部屋は寝室とあと二部屋、ウォークインクローゼットが欲しいです。
玄関にシューズインクローゼットも欲しいです。
トイレは1階2階共に欲しいです。
家族構成は4人家族で子供が2人(小4.小1の姉妹)です。
