※土地の大きさ:
東面11.5m 西面9.6m 北面14.7m 南面14.3m
※接道:
西側と南側が道路
周辺状況:
北側は資材置き場と隣接していて高い壁がある、
東側は住宅
西側細い道路(幅員3mほど)、
南側歩道を挟んで広い道路(幅員12mほど)
※用途地域: 不明
壁面後退: 不明
※階数: 2階建て
※建物の規模: 30坪、要望は30坪程度
※必要な部屋:
建物は2階建て30坪ぐらい
(なるべく無駄を削ぎたいのでもっと小さくても良いです)
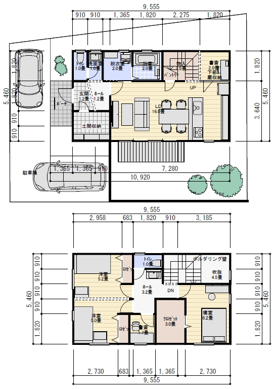
1階:
LDK、玄関に土間収納+手洗い、
パントリー、トイレ
2階:主寝室、子供部屋2つ
1階or2階どちらか:ファミリークローゼット、
風呂、テレワークスペース2畳ほど
間取の要望: リビング階段
子ども部屋は仕切りなし(大きくなったら仕切りたい)
バルコニーなし(花粉症のため1年中部屋干し)
LDKでホームシアターをしたいので遮光も考えたい。
LDKに子供の勉強スペース、
水槽を置く場所(幅1m、奥行き40cmほど)
寝室は寝るだけの部屋、
子供部屋も小さいうちは遊び部屋、大きくなった
ら寝るだけの部屋と考えてる、
勉強はLDKで、衣類はファミリークローゼット。
夢(予算によって諦め):
吹き抜けでボルダリング、スキップフロアと
階段がつながった間取り、 出来ればゲストルーム
駐車スペース2台(現在1台ミニバン、将来的に+1台の計2台)
※家族構成: 家族は4人で夫婦と子供2人 (男10才、女6才) です。
