敷地の大きさ:北道路 13.5M×22M
建物の規模: 29坪 3LDK 平屋
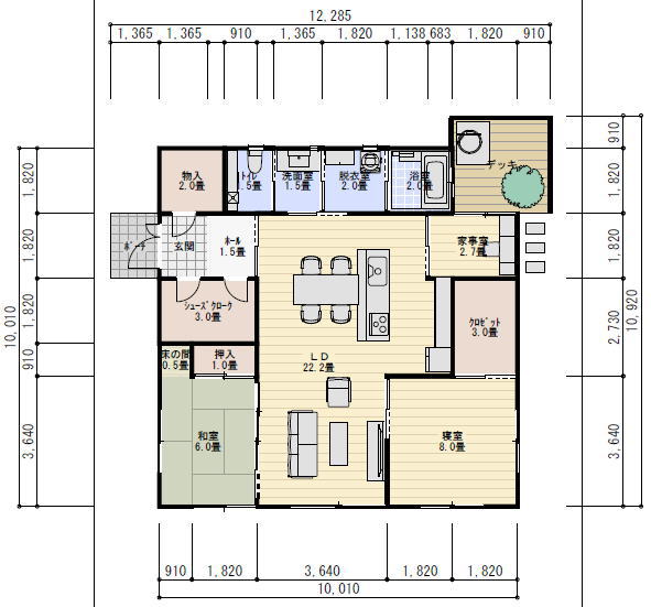
必要な部屋:
1階
玄関ホール 3畳
土間収納 2畳
シューズクローク 3畳
リビングダイニングキッチン 22畳
寝室 8畳 ウォークインクロゼット 3畳
和室 6畳 押入れ 床の間
洗面室 1.5畳 脱衣室 2畳
浴室 1坪 2畳
トイレ 1.5畳
家事室 2.7畳
間取りの要望:
玄関に広い土間収納が欲しい
玄関ホールは天井を高くする
リビングは広くして天井を高くする
キッチンは対面式でアイランドキッチンにする。
キッチンそばに家事室を設ける。
家事室から庭に出れる配置
お風呂からも庭が見える。
和室はリビングに接して配置する
和室には床の間が欲しい。
寝室に広いウォークインクロゼットをつける
トイレはカウンター収納手洗い器をつけ広くする
タンクレストイレ
洗面室と脱衣室は別にする。
リビングダイニングと寝室と和室は
南にはきだし窓をつけて明るくする。
駐車場は並列駐車にする。
家族構成:夫婦 2人
