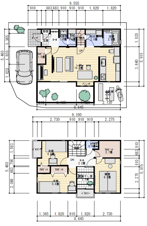
【 土地の大きさ 】
変形地(間口8.84 奥行12.23)南西の角はなく、丸くなっています。
【 接道 】
南西角地(2項道路)セットバックで、道路幅3,117~3,270
【 用途地域 】 第一種住居地域
【 壁面後退 】 –
【 階数 】 2階建て
【 建物規模 】 28坪 バルコニー込みで29坪
要望は28.73坪(バルコニー含む)。バルコニー含む29坪くらい。
【 必要な部屋 】
・1階LDK(角地で道路が狭いので1階寝室は嫌)
・2階 部屋3つ(子どもが小さいときは3人一緒に寝れる6帖以上の部屋は1つ以上必要
⇒ 子どもが個室になるころは、夫婦も別室とするので3室必要)
・クローゼットもしくはウォオークインクローゼット
(主寝室からではなく廊下から入り、中で着替えがしたい)
・インナーバルコニー(洗濯は基本部屋干しにするので、
布団を干すだけ。小さくてよい)
【 間取りの要望 】
・夫47歳、妻41歳のため、老後を考えて、
年齢的に階段はゆるやかな感じを希望。
・玄関周りに土付きの野菜を置くスペースが欲しい。
・玄関周りに、コートをかける場所がほしい。
・洗面と脱衣は仕切れるか別が希望。
・1Fに日常着が入る1間分のクローゼットが欲しい。
(本当は1階にファミリークローゼットが欲しい)
・階段はリビングに近い、リビング階段にするなら引き戸をつけて冬の寒さ対策をしたい。
・キッチン収納は多め希望(料理が好きなのでレシピ本も収納したい)
・できればキッチン付近にパソコンを置けるワークスペースが欲しい。
・子どものピアノを置けるスペース
・小型犬1匹(トイレの始末を考えて、ペットシーツを置ける場所がトイレに近い方がよい。)
・車は普通車1台、バイク1台、自転車3台
【 家族構成 】 夫婦+子ども1人+老犬1匹
緩やかな階段は実現できていませんが
1階の階高を抑えれば1段分の高さ蹴上が減少します。
階段の段数を1段増やすのでも緩やかになります。
