※土地の大きさ 敷地90㎡ 間口4.2m 奥行き20m
建物 21坪(要望は70㎡程度)
※接道 東道路、南道路
※用途地域 一種低層住居地域
壁面後退 隣地境界から0.5m
※階数 2階建て
※建物の規模 70平米程度(建ぺい率40% 容積率80%)
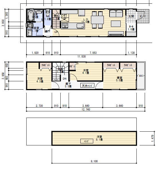
3LDK
※必要な部屋
建物は2階建て+グルニエ
1階にLDK15J以上確保したい
二階には子供部屋2室と夫婦の寝室が1室
駐車場必要
間取の要望
○土地の長辺が南に面しており、
日当たりは抜群なので、夏の暑さが不安。
○キッチンは対面キッチン(L字でも可)
○リビング階段で2階にあがりたい。
○細長い土地なので、建物は実質幅3m強となってしまう、
階段などで幅が狭く感じないようにリビングは幅を確保したい。
○延べ床が狭いので、延べ床に含まれない面積のグルニエを設置したい。
○なるべく収納をかくほできるようにしたい。
※家族構成 家族は4人で夫婦と子供が2人です。3人目も希望。
設計者からのコメント
北側がかなり低くなりますので
小屋裏には南に天井隠蔽式階段で上るようにしています。
ベッドルームの北部分は斜線制限で
通常の天井より低くなります。
階高設定やプランによっては2階建てでも
間取りが成立しない可能性もあるのでご注意ください。
