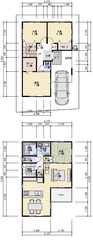
※土地の大きさ : 間口7.93m 奥行12.1m 添付画像のNO.4
※接道 : 南道路
※用途地域 : 1種中高
壁面後退 : -
※階数 : 2階建て
※建物の規模 : 29坪(要望は29坪程度)
※必要な部屋 :
・2Fリビングで、直結の4.5畳ほどの和室(小上がりでもOK)が
欲しいです。
・1Fには、夫婦の部屋1つ、子供の部屋(5畳程度)2つが欲しいです。
間取の要望 :
・2Fに風呂、トイレ、洗濯機が欲しいです。
・風呂には窓は要りません。トイレはどちらでも可。
・キッチンは対面キッチン
・階段(廊下?)とリビングの間には扉が欲しいです。
・勾配天井は不要で、平面天井(高い方が可)を希望します。
・ロフトは不要で、小屋裏収納があると可です。
・駐車場は1台。縦(道路に垂直方向)に停めたいです。
・自転車は4台以上置けるスペースが必要です。
・2Fベランダは、奥行き1820あると嬉しいです。
・玄関外に水道が欲しいです。
※家族構成 : 家族は4人で夫婦と子供が2人です。
