※土地の大きさ 間口7M 奥行き15M
東南の角は隅切りあり(1辺1.8m)
※接道 南4m、東5.5m道路
東道路は北に向かって下り勾配あり
敷地の北東は道路との高低差が約1m
※用途地域 一種低層住居地域
壁面後退
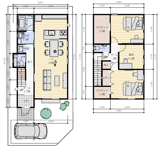
※階数 2階建て
※建物の規模 30坪程度
※必要な部屋
建物は2階建て30坪ぐらい
1階に広いLDK
洗面室と脱衣室は別に
二階には7畳程度の洋間を2室
(クローゼット付き)とトイレ
間取の要望
2階の各部屋にクローゼット
1階に収納スペースを多くして欲しい
玄関からLDKを通らずにトイレ、
洗面所に行けるように
LDKから2階への階段はNG
洗面室と別に脱衣室兼洗濯干し室が必要
トイレは1.5畳程度で引き戸
(高齢になった時のため)
自家用車1台のスペースを確保
庭も欲しい
※家族構成
家族60歳代男と30歳代娘1人です。
洗面脱衣を分けずにトイレを出来るだけ階段下にしないタイプ
