土地の大きさ
間口14M 奥行き16.4M
接道(添付参照)
北東8M北西3.6M
※北西道路には横断歩道があります。
※北西道路はセットバック分0.2M使用不可
→奥行は変えることはできないのですが,
北東道路の間口は少なくすることができます。
面積が少なければ土地の値段を
下げていただけることになっています。
(現在は240.5㎡(72.75坪))
そのため北東道路の間口を少し減らしても,
理想の間取り的なものになるのであれば,
それはそれで大変助かります。
用途地域
一種住居地域
壁面後退
角地のため北西道路の道路斜線制限は16Mまで
北東道路と同じになります(北西道路はセットバック分0.2M使用不可)
階数
2階建て
建物の規模
30坪から36坪程度
必要な部屋等
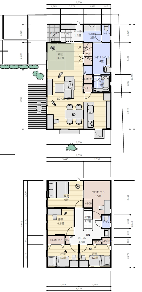
1階関係
行き止まりのない動線
ランドリールームorランドリークローゼット
(除湿器で何とかしますので日当たりは気にしません)
洗面と脱衣室は別
リビングに接する形で
小さくても良いので小上がり和室
勉強や読書ができるカウンター
キッチンは対面キッチン
リビング階段で2階に
小さくて良いのでパントリー
吹き抜けはなしで
水回りは一階にお願いしたい
南側東側は道路に面していないので,
大きな窓をとって庭が楽しめると良いなと思います。
それ以外の窓は最小限で良いと考えています
(風呂トイレは窓不要など)。
2階関係
2階は主寝室,夫の部屋
(趣味部屋。電子ドラムを設置します),
妻の部屋(WIC兼ねる。
手芸が趣味で机は設置したいです)子供部屋×2
2階にトイレと洗面台がほしいです。
2階の各部屋は寝るだけなので小さくて良いです。
既に作成した間取りではそれぞれ収納なしで
子供部屋4.3帖,
主寝室5.5帖,
妻部屋兼WIC4.3帖,
夫の部屋4.5帖でした。
ベランダは不要
子供部屋と主寝室は隣接していてほしくないです。
その他
収納スペースは適切な箇所に設置していただければと思います。
既にある作成した間取りでは,
1階はそれぞれを広めに確保したため
総二階にはなりませんでした
(リビング20帖,洗面兼ランドリークローゼット5帖)。
※総二階にしたいとかはないです。
駐車場3台は必須(緊急で4台止められると良いです)
外に物置を設置したい
家族構成
家族は現在2人の夫婦(夫31歳,妻28歳)のみですが,
子供を2人以上希望しています。
