※土地の大きさ 間口8M 奥行き20M
※接道 南道路
4.5m
※用途地域 第1種中高層住居専用地域
壁面後退
※階数 2階建て
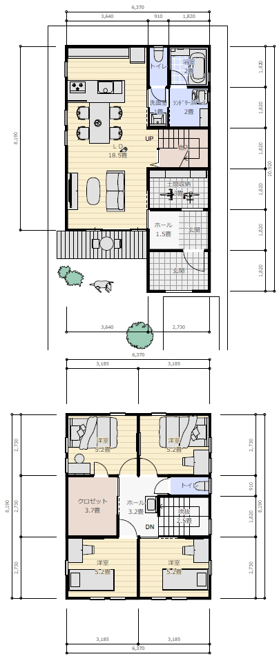
※建物の規模 32坪 要望は30~33坪程度
※必要な部屋
建物は2階建て33坪ぐらいまで
1階にLDKとランドリールーム、
玄関(土間)を広く取りたい
(玄関にロードバイクなど置くため)
2階に子供部屋4.5畳が2室と
夫婦それぞれの部屋が2室4.5畳か6畳でほしい
(寝室無し)(部屋の大きさは、
収納などのバランスをみて、希望と違っても可)
間取の要望
2階の子供部屋2室は、
子供が自立した後、ゆくゆく壁を壊しておおきな1室にできるようにしたい。
2階各部屋に収納を設けたい。
妻の部屋は大きめの収納が欲しい
(間取りのバランスを見て難しいようであれば、
妻の部屋以外の収納は、
室外に収納(納戸のような)を設けるなど変更も可)
キッチンは対面キッチン
リビング階段
1階、2階のトイレにそれぞれ洗面ボールのような、
手洗い場がトイレの個室外にほしい。
ベランダは不要
低燃費住宅を予定しており、
ふきぬけが必要であれば
(私どもの希望はどちらでも良い)
車は2台(普通車、軽自動車)所有
※家族構成
家族は4人で夫婦と子供が2人です。
