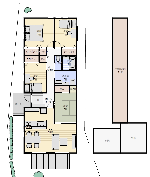
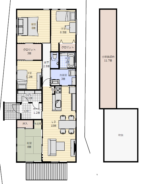
※土地の大きさ 間口8M 奥行き18M
周辺状況
※用途地域 住居地域
※階数 一階平屋
※建物の規模 31坪(25〜30坪程度)
※必要な部屋
建物は平屋で30坪ぐらいで、
4LDKで和室が一部屋欲しいです
部屋は大きくなくてよいので、
洋室2室と夫婦の寝室が1室
ウォークインクロゼットが欲しいです
間取の要望
キッチンは対面キッチン
和室はリビングに接するようにほしいです。
勾配天井でロフトが欲しいです。
トイレに手洗い
駐車場3台
※家族構成
家族は現在4人で夫婦と子供が1人
