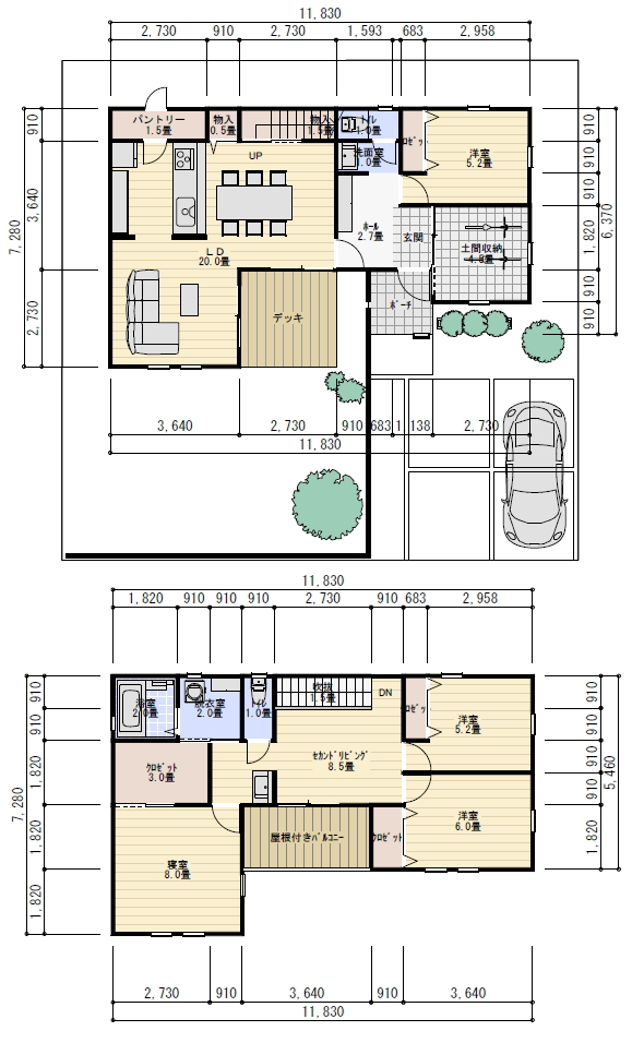
敷地の大きさ:南道路 14.5M×14.5M
建物の規模: 40坪 4LDK
2階建て
必要な部屋:
1階
リビングダイニングキッチン 20畳
洋室5畳 クロゼット
玄関ホール 4畳
土間収納 4.5畳
洗面室 1畳 トイレ1畳
階段下収納 1.5畳
パントリー 1.5畳
2階
寝室 8畳 ウォークインクロゼット 3畳
洋室 5畳 クロゼット 1畳
洋室 6畳 クロゼット 1畳
セカンドリビング 6畳
トイレ 1畳
浴室 2畳
脱衣室 2畳
間取りの要望:
玄関に広い土間収納をつける
玄関付近にトイレと洗面台をつける
独立した洋室を1階に設ける。
リビングダイニングキッチンは一つの空間だが
ダイニングとリビングがエリア分けされているようにしたい
リビング階段で2階へ上る
リビング階段なだが暖かい空気が上に行かないようにしたい。
キッチン横にパントリー収納が欲しい
キッチンは対面式キッチンにしたい
リビングとダイニングにから出る
ウッドデッキが欲しい
駐車場並列駐車場2台
2階の各部屋へはセカンドリビングを通って入っていく
屋根付きのバルコニーが欲しい
子供部屋の想定の部屋は東側に配置する
東から光が入るようにしたい
2階に洗面室と脱衣室浴室などの水回りを設ける
室から風呂に行きやすくしたい
家族構成:夫婦 2人 子供2人
