土地の大きさ:間口7.9M 奥行き23M
接道:南道路 8M
用途地域:1種住居、建ぺい率:60%、容積率:200%
階数:2階建て
建物の規模:延べ床面積要望は45坪
45坪程度(42〜48?)
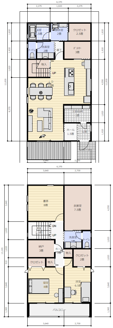
必要な部屋:
1階にLDK/2階に書斎8畳〜
(夫婦・今のところ子供も使用)/
夫婦の寝室8畳 +クローゼット/
子供部屋6〜8畳+クローゼット/
衣装部屋
パントリー/
玄関土間収納/納戸/小屋裏収納/駐車場
間取の要望:
1階2階にトイレを要望しますが、
2階は手洗いも兼ねた水場がほしいです。
今 の我々の生活スタイルからは、
LDKより書斎で過ごすことが多いです。
洗濯物 は部屋干しの方が多め。
島型キッチン(回遊型)を希望。
小屋裏収納が必要となる計算しています。
可能であれば小屋 裏収納へはハシゴでなく
階段でのアクセスをお願いしたいです。
車は最低一 台と自転車を三台置きたいです。
家族構成:夫婦と小3男児1人の計3人
