※土地の大きさ 間口6M 奥行き27,3M
※接道 西道路
※用途地域
二種住居
壁面後退
※階数 2階建て
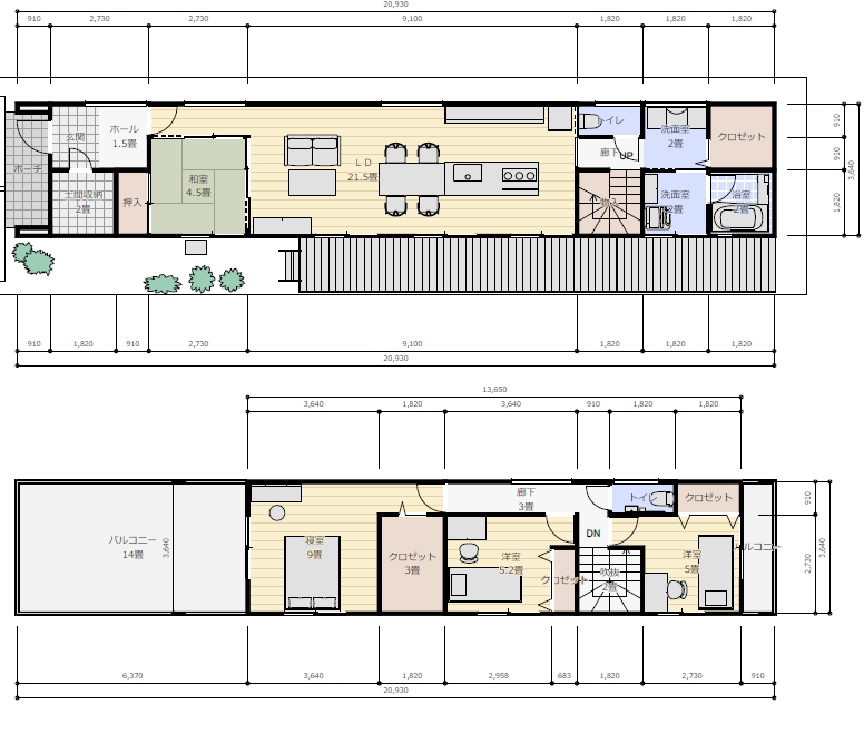
※建物の規模 40坪程度
※必要な部屋
建物は2階建て37坪ぐらいで
1階にLDK
4畳程度の和室が一室欲しいです
二階には子供部屋6畳が2室と
夫婦の寝室が1室8畳とウォークインクロゼットが欲しいです
細長い家になりますので、
二階に広いベランダがあるといいです。
間取の要望
子供室は後から仕切れるようにしたい。
ダイニングテーブルと横並びのキッチンが希望
トイレは各階に1個
※家族構成
家族は3人で夫婦と子供が1人です。将来的にはもう1人。
