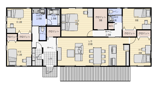
平屋 間取り 5ldk トイレ 2つ南玄関
敷地の大きさ:
21M×15.5 南道路
建物の規模:
40坪5ldk木造平屋建て
平屋間取り
必要な部屋:
LDK20畳
寝室 9畳
ウォークインクロゼット 3畳
洋室 6畳 4室
各部屋にクロゼット
洗面室 2.5畳
浴室 2.5畳
トイレ 1畳 2か所
シューズクローク
ファミリークロゼット
間取りの要望:
アイランドキッチン フルフラット
リビング南側 玄関南西側
玄関付近にファミリークロゼット
玄関にシューズクローク
駐車場 並列2台
家族構成:
夫婦子供3人
将来親と同居
平屋間取り 5ldk
