土地の大きさ 100坪程度の正方形
18m×18m
※接道 南東、北東 接道がある角地です。
※用途地域 わかりません。
壁面後退 わかりません。
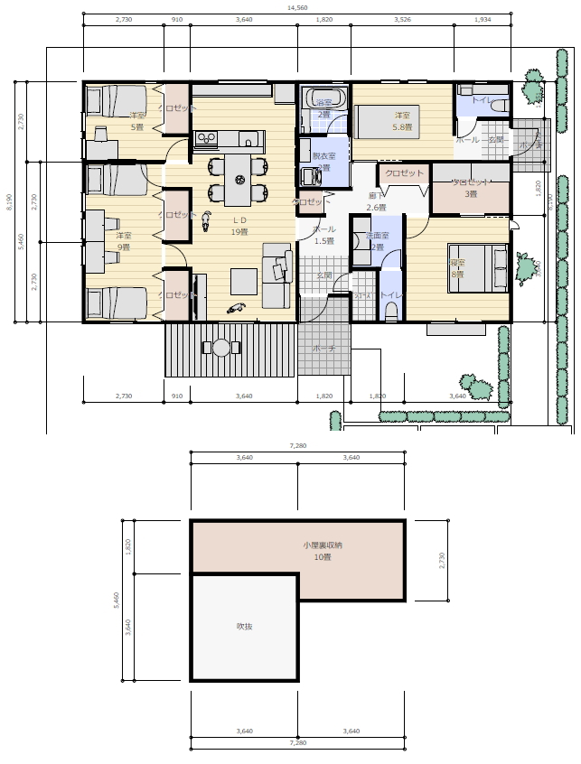
※階数 平屋
※建物の規模 30から35坪
※必要な部屋 建物は平屋
1階にLDK18から20
子供が3人で性別が別なので3部屋子供部屋を設けたいですが
一部屋は4.5畳、もう一部屋は9から10畳を
分割して使えるような部屋を希望します。
夫婦の寝室は8畳
整体をしたいので玄関とは別な入口付きの
トイレ洗面台付きの6畳ほどの部屋もほしいです。
間取の要望
子供部屋は上記のように2部屋で
一部屋は分割できるタイプがいいです。
キッチンはアイランドキッチンで
キッチンから洗面、風呂場にいけるような導線がほしいです。
パントリーもほしいです。
キッチンからLDK全体を見渡せるとうれしいです。
また、LDKからと整体部屋はなるべく離れてて欲しいです。
整体部屋は玄関とは別の入り口、
トイレ洗面台の完備をしたいです。
全体的に収納も多めに取りたいのでファミリークローゼット
もしくはウォークインクローゼットがほしいです。
玄関にはシューズクロークと数着上着をかける場所が欲しいです。
トイレは玄関近くと整体部屋の2つほしいです。
駐車場は3台
※家族構成 家族は5人で夫婦と子供3人です。
