接道 南道路と西道路に面した角地
用途地域 第1種低層住居専用地域
壁面後退 50㎝
階数 2階
建物の規模 33~34坪
必要な部屋
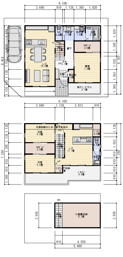
1階
・リビングダイニングキッチン16畳はほしい
・両親のベッドルームとウオーキングクローゼット
・玄関に土間収納(シューズクローク含む)
・トイレ ・洗面 ・浴室 ・収納
2階
・リビングダイニングキッチン12畳はほしい
・個室2つ ・トイレ ・洗面 ・洗濯機置き場 ・収納
・小屋裏収納もできたらほしい
間取りの要望
・1階は80代の両親のためにバリアフリーにしたい
・1階の洗面と脱衣場は分ける。
階段の幅は広く(90㎝以上)なるべく折り返さない。
・1階のトイレは寝室のすぐ近くにしてほしい。
・1階リビングが16畳以上とれるなら
畳コーナーを作って来客が寝れるようにしたい
・1階2階ともリビングに収納が欲しい
・2階の個室は5畳位でもよく、
2室の間に広いウオーキングクローゼットを配置して両方から
入れるようにしてもよいし、10畳を真ん中で仕切る形でもよい。
その場合は両方にウオーキングクローゼットが欲しい。
・廊下はなくてよいので部屋を広く、
パソコンを置く机も欲しい(1階2階とも)収納も多くほしい。
・洗濯物を干す場が1階2階にほしい
(2階はベランダでよい)
・駐車場は並列でなくてよいので出来たら2台分
(無理なら1台)玄関までスロープ希望
家族構成
両親と娘と孫 4人
