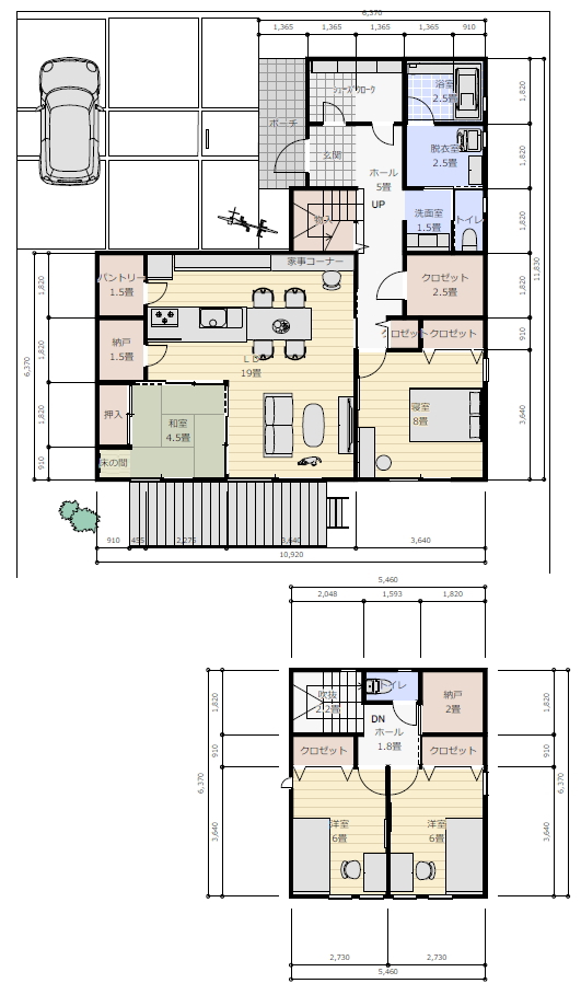
土地の大きさ:間口15m 奥行き25m
接道:北西道路
用途地域:第一種中高層住居専用地域
階数:2階建て
建物の規模:40坪程度
必要な部屋:
1階
LDK(18畳以上)、和室、主寝室(8畳)
風呂、洗面脱衣室、トイレ
ファミリークローゼット(2~3畳)
シューズクローク(2~3畳)
2階
子供部屋(5~6畳)が2部屋とトイレ
間取りの希望:
・1階だけで生活できるように1階に収納等を充実させたい。
・西側に車2台が停められる駐車場をとって、
車からすぐのところに玄関が欲しい。
・シューズクロークはウォークスルーが良い。
・水回りと階段はリビングを通らずに使いたい。
・リビングは日当たりの良い位置が良い。
・衣類乾燥機を使用+室内干しをしたいので洗面脱衣室は広めに欲しい。
・和室はリビングに続けたい。広く出来ないようなら畳コーナーでも良い。
・キッチンは対面で、ダイニングテーブルと横並びにしたい。
・バルコニーは不要。
家族構成:4人家族で夫婦と子供2人です。
