※土地の大きさ 間口14.11M 奥行き13.71M
※接道 北道路
周辺状況
※用途地域 市街化調整区域
壁面後退 不明
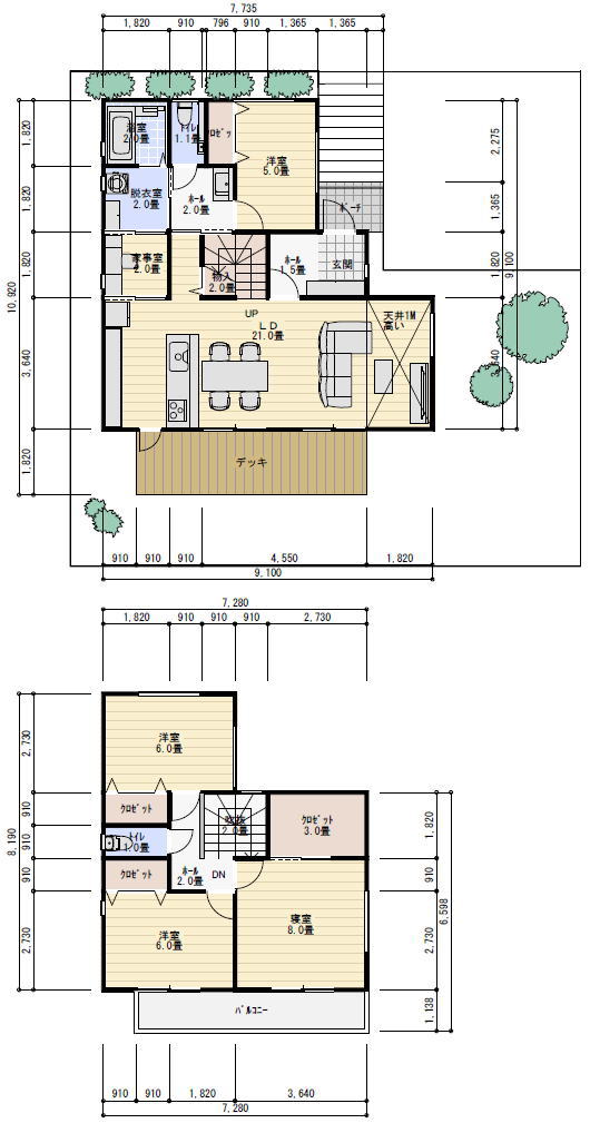
※階数 2階建て
※建物の規模 35.5坪(要望は35坪程度)
※必要な部屋
建物は2階建て35坪ぐらいで
広めのシューズクローク
1階にLDK20畳
リビング階段希望です。
二階には子供部屋6畳が2室と
夫婦の寝室が1室8畳と
ウォークインクロゼットが欲しいです
間取の要望
キッチンは対面キッチン
1階トイレに手洗いつきとしたい。
※家族構成
家族は4人で夫婦と子供が2人です。
