土地の大きさ :間口 10.5m 奥行 18.54m
接道 :南西道路 6.5m
周辺状況 :図面を参照ください。北は倉庫、東 西に隣家が建つ予定です
用途地域 :不明(宅地造成工事中)
壁面後退 :不明
当方、日当たりを重視している為
南西方向にリビング配置したいと考えております。
暑いでしょうか…
ハウスメーカーからのLDKプランが北東側に配置されていて、
3方向建物の予定なので吹き抜け?
の可能性もあり悩んでいます。
要望としては午後からの日当たりが直射日光で欲しいので
何か良い案がありましたらご教授ください。
ちなみに1階部分の勾配天井はOKですが吹き抜けは近い将来一人暮らし、
北国で無駄に光熱費がかかるような気がして勇気がありません、、、
階数 :2階建て
建物の規模 :
26から28坪前後(30までは厳しい)
必要な部屋 :
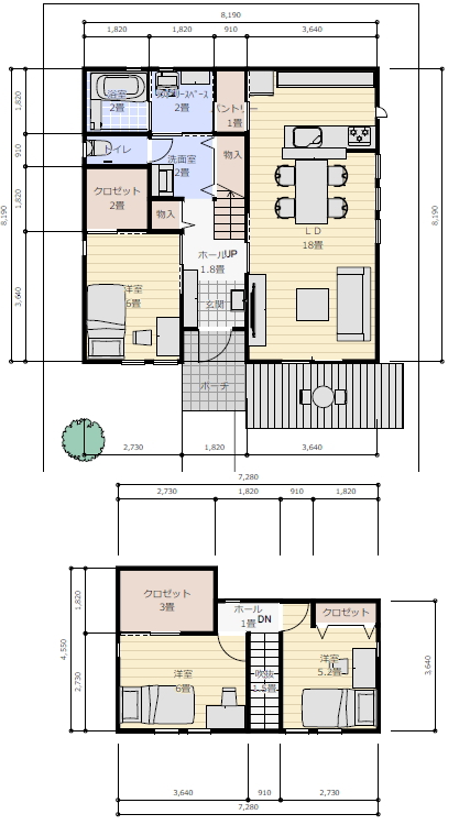
・1階にLDKを18~20畳位を希望。
対面キッチン、寝室、洗面、脱衣所、
パントリー(出来ればルーム)、トイレ
2階は2部屋でトイレは不要です。
間取りの要望
・回遊動線希望。
1階は玄関からシューズクローク
(小さくても可、なんなら無くても良い)を通り
→手洗い兼犬の足を洗う洗い場
→パントリールーム
→キッチンリビングへ繋がっていて欲しい
・キッチン、洗面、脱衣(乾太くん導入予定)
トイレはそれぞれ分かれていてほしい
・1階で全て完結させたい。
・1階の寝室は将来、
同居するであろう母親の寝室となる予定なのでウォークイン付き洋室で四畳半~。
それまでは建主が寝室として使用します。
・2階は子ども部屋2部屋、
うちひとつはウォークイン付き希望です。
2階それぞれの部屋の広さは均等でなくても大丈夫です
・2階は次女(中学生)の子供部屋として使用です。
3年後は確実に家を出るので
その後は建主の寝室として使用。
なのでウォークイン付きはひと部屋必須項目です。
2階のもうひと部屋は長女(大学生)の帰省時等の部屋なので簡素でOKです
・駐車場は2台 (軽自動車1台、普通車1台)
・庭は要りません
・できるだけ日光の当たる部屋をリビングとして配置したい。
家族構成 現在2人+犬 1匹
建主(女)と子ども(中学生)
※年に数回大学生の長女が帰省、
将来同居予定の母親が居ます。
