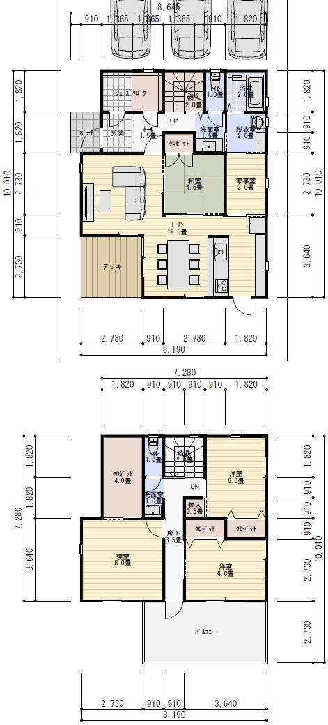
敷地の大きさ:: 北道路 10M×20M
建物の規模: 39坪 4LDK
2階建て
必要な部屋:
1階
玄関ホール 3畳
シューズクローク 3畳
家事室 3畳
リビングダイニングキッチン 20畳
和室 4.5畳 押入れ
洗面室1.5畳 脱衣室 2畳 浴室 1坪
トイレ 1畳
階段室
2階
寝室 8畳 ウォークインクロゼット 4畳
洋室 6畳 クロゼット 1畳 2室
トイレ 1畳 洗面台
間取りの要望:
玄関は西玄関から入る。
駐車場は3台並列で止める。
玄関のそばにシューズクローク3畳をつける。
玄関土間と玄関ホールから2箇所から出入りする。
階段は独立階段で2階へ上がる。
リビングの一角に和室4.5畳をつける。
和室はリビングダイニングに開放できるようにする。
リビングダイニングが一体化しているが
エリア分けされたような空間にする。
キッチンを対面式キッチンにする。
ダイニングは広く作る。
キッチン脇に家事室を作る。
家事室から脱衣室へ通り抜けられるようにする。
洗面室と脱衣室は分かれている。
トイレの近くに洗面室を設ける。
キッチンから洗面脱衣やお風呂などの動線計画を短くして
家事動線をコンパクトにまとめる。
洗濯機から階段を上って2階のベランダへ
スムーズに行けるように動線計画を作る。
寝室には広いウォークインクローゼットを作る。
2階にも洗面台をつける。
2階にもトイレを作る。
部屋を通らずにバルコニーへ行けるようにする。
広いテラスにして物干しやテーブルを置けるような広さにする。
1階のリビングとダイニングの前に
ウッドデッキのテラスを設ける。
ダイニングとリビングは南側の庭に出れるようにする。
家族構成:夫婦 2人 子供2人
39坪4LDK間取りシミュレーション
