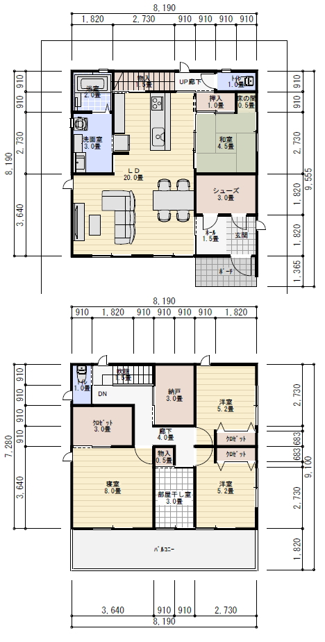
敷地の大きさ::南道路 11M×17M
建物の規模: 38坪 4LLDK
2階建て
必要な部屋:
1階
リビングダイニングキッチン 20畳
和室4.5畳 押入れ 1畳 床の間
玄関ホール 3畳
シューズクローク 3畳
洗面脱衣室 3畳 バス 2畳
トイレ 1畳
階段下収納 1.5畳
階段室
2階
寝室 8畳 ウォークインクロゼット 3畳
洋室 5畳 クロゼット 1畳 2室
トイレ 1畳
物干し室 3畳
納戸 3畳
間取りの要望:
玄関には3畳の広いシューズクロークが欲しい。
玄関は南東側に配置したい。
リビングダイニング
キッチンの前を通ってから階段で登るプランにしたい。
キッチンと洗面脱衣が近い家事動線に配慮した間取り
和室をLDK に接したプランにしたい。
暖かい空気が上に行かないように階段室とリビングは仕切りたい。
トイレは一階と二階に欲しい。
部屋干し室を2階に作りたい。
寝室は2階のバルコニーテラスに接して配置したい。
子供部屋は東に配置する。朝さわやかな光
共用の広い納戸が欲しい。
南側に広いバルコニーテラスが欲しい。
家族構成:夫婦 2人 子供2人
