敷地の大きさ:
14.5M×17M 南道路
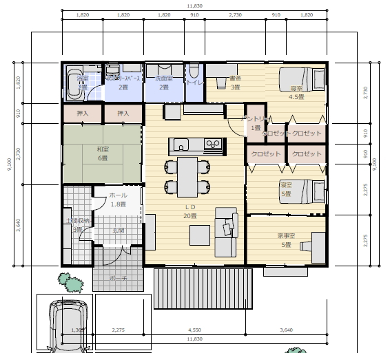
建物の規模:
32坪 5LDK 平屋
必要な部屋:
LDK 20畳
和室6畳 押入れ2畳
夫寝室 4.5畳
夫 書斎 3畳
妻寝室 5畳
妻書斎兼家事室 5畳
玄関
土間収納 3畳
洗面室 2畳
脱衣室兼ランドリー2畳
浴室 2畳一坪タイプ
トイレ1畳
小屋裏収納 未定
駐車場並列2台
間取りの要望:
キッチンはアイランドキッチンで回遊性を作る
キッチンにパントリーを作る
洗面と脱衣室を分ける
キッチンと脱衣室を近くする
脱衣室は部屋干し室を兼ねる
和室はリビングと玄関ホールから出入りする
リビングの南にウッドデッキテラス
玄関にツーウェイのシューズクローク兼土間収納
妻の寝室と作業スペースは南側に配置
明るい場所に妻のスペースを広く作る
夫の書斎スペースは北側でもよい
夫の寝室はベッドが置ける程度の広さ
家族構成:夫婦二人
