土地の大きさ
間口8.1M 奥行20.9M
途中から幅が12Mに広がっている変形地
面積約75坪
接道 東道路
用途地域 近隣商業地域
壁面後退 不明
階数 2階建て
建物の規模 38坪(要望は38坪前後)
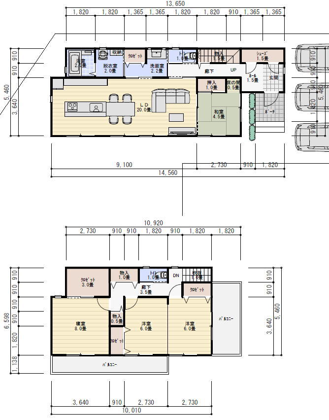
必要な部屋
・1階にLDK20帖(可能であればもっと大きく)
・4.5帖程度の和室
・2階に寝室(8帖以上)、
2部屋(各6帖)
・東側に駐車場3台分
間取りの要望
一階
・南側に建物が建っているため日当たりを気にしている。
リビングに吹き抜けが欲しい。
(南の西側が一番日当たりが良いように思うのでリビングはそこが良い?)
・玄関にシューズクローク(土間収納)1.5帖
・1階にファミリークローゼット
・洗面所に収納が欲しく、広めの洗面所を希望。3帖
・ファミリークローゼット→洗面所→風呂の動線を大事にしたい。
・キッチンは対面でキッチンの横にダイニングテーブルが置ける配置。
・キッチンにパントリーがあるとありがたい。
・階段とリビングは分けたい。(リビング内にするのであれば、扉を付けたい)
・和室には押し入れ必須
二階
・寝室は8帖以上でウォークインクローゼットが欲しい
・洋室2部屋は各6帖で収納。
・家族の生活時間が異なるため、寝室は吹き抜けから離して欲しい
・バルコニーを2つ。
・2階にもトイレ
家族構成 家族は3人で夫婦と子供1人。夫婦は在宅勤務。
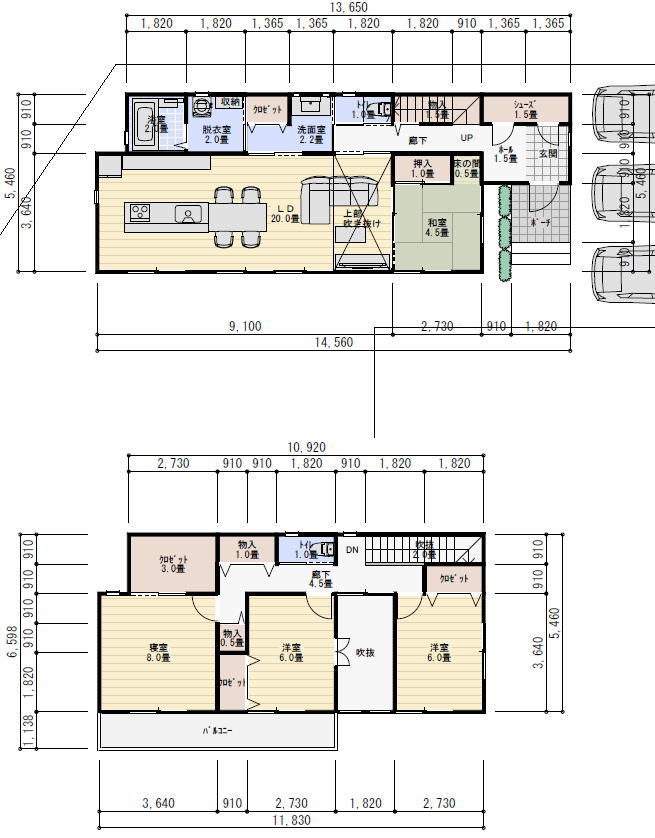
設計者からのコメント:
ファミリークロゼットを広く設けたい場合、
階段から廊下、洗面脱衣の動線をリビング経由にして
廊下をなくすようにします。
コストを抑えたい場合、明り取りの吹き抜けをやめることで
37坪の間取りプランを実現できます。
1坪延べ床面積を減らしながら2坪分の吹き抜けを減らすので
合計3坪分のコスト削減を狙うことができます。
