土地 間口9m 奥行き15m
敷地面積 37坪
接道 北道路
用途地域 2種中高
建築予定 交渉中です
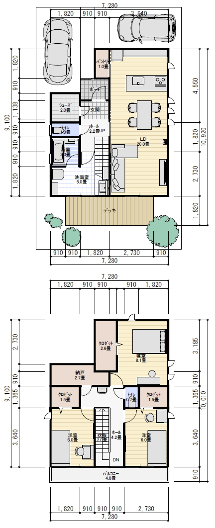
階数 2階建て
建物規模 35坪(要望は44坪)
必要な部屋 リビング20帖以上
洋室3部屋
シューズクローク
パントリー
トイレは1階と2階
間取り要望 裏が南なので南側にベランダが
ほしいです。
洋室各部屋にウォークイン
クローゼットができれば
ほしいです。
家族構成 夫婦2人 子供1人
