※土地の大きさ 111.61m2, 建ぺい率・容積率 60%・150%
道路 北4m幅(接道幅4m)
※用途地域 1種低層
壁面後退 不明
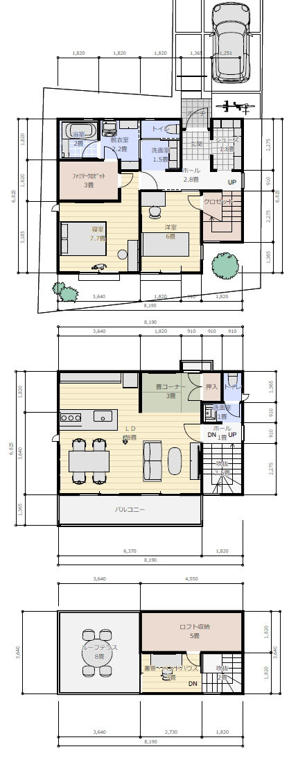
※階数 2階建て 3階部分は塔屋
※建物の規模 30坪 ペントハウス入れて32坪 105㎡
(要望は延べ床120~140m2)
※必要な部屋 2階にLDK
3部屋
1室目にはウォークインクロゼットが欲しいです
2室目には在宅ワークが増えたため書斎
3室目は子供部屋
間取りに余裕があれば2階に
小上がりの和室スペースが欲しいです
3階に広いバルコニー
間取の要望
余裕のあるキッチン付近にパントリー、
一階にはシューズ収納スペースが欲しいです
間取りに余裕があれば室内干し用に洗面室を広くするか、
ランドリースペースのようなものにする
トイレは2か所で手洗いつきとしたい。
2階と寝室がある階
予算や建築法上可能かわからないのですが
ロフト収納があると良いかと思います。
車はミニバンです。
駐車スペースは間口の所予定です。
※家族構成 家族は3人で夫婦と子供が1人です。
設計者からのコメント:
要望は3階建てでしたが一種低層の用途地域のため北側斜線と
軒高の制限を考慮して2階建ての設計とさせていただきました。
3階建てにしてロフト風の書斎を拡大する方法もあるかとは思われます。
ペントハウス部分のボリュームは
設計者、確認申請の審査機関と相談の上決定ください。
外観は塔屋部分をわかりやすく
上に飛び出すように指導があるかもしれません。
どうしても部屋干しスペースがとりたい場合
階段踊り場を拡張して南に大きくする方法もあると思います。
