※土地の大きさ
間口11.4M 奥行き11.8M
※接道
南道路6M、西道路6M
※用途地域
第1種住居専用地域
壁面後退
隣地境界から0.74M
※建物の規模
30~33坪程度
※必要な部屋
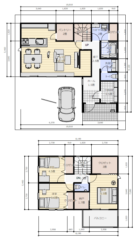
建物は2階建て
1階に18畳~20畳程度のLDK
1階に2畳程度のパントリー
1階にファミリークローゼットがあるとなおよし。
二階には洋間4.5畳~5畳を2つと、
洋間5畳~6畳を1つほしい。
二階にも納戸があるとなおよし。
間取の要望
《1階》
・南西角地で、帰宅するときは南側道路を東から歩いて帰ってきます
・土間収納がほしい
(台風の時に自転車を1台仕舞えるスペースがほしい)
・階段は廊下にほしい
・キッチンはI型壁付けセミオープンキッチン希望
(幅2.5M程度、背面収納との間の通路は1M~1.1M程度確保したい)
・キッチン裏に二畳程度のウォークインスタイルのパントリー
・脱衣室と、洗面台&洗濯機は扉で仕切りたい
・テレビは壁掛けではなくテレビ台に置く予定です
・テレビ台裏に、引き戸で仕切られた
ウォークインスタイルのリビング収納があるといいなと思っています
(コンセントも仕込んで、
掃除機の充電やWi-Fiのルーターなど入れたり、
おもちゃの収納として使ったりしたいです)
・帰宅後、すぐに洗面台に行けるような動線の家が理想です
《2階》
・2階にもトイレを1つ入れようと思っています。
手洗いをつけるかは悩み中です。
・4.5畳~5畳の洋間にはシングルベッド、
5畳~6畳の洋間にはセミダブルベッドを置く予定です。
《外構》
駐車場は2台
宅配ボックスつきの門柱
庭は要らないのでコンクリート敷き詰めたいです
※家族構成
家族は3人で夫婦と子供が一人です
