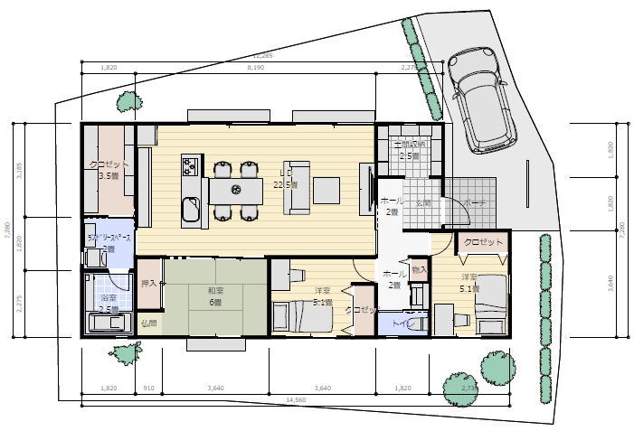
間取りの要望:
平屋を希望
30坪(要望は28~30坪希望)
北が開けており、東側が二項道路
西が空地
南が隣家で全く光が入らない
なので、北もしくは東に玄関を希望
LDKを20畳以上に広くとり大きな窓で開放的にしたい
キッチンを中心に回遊動線大切
独立洗面希望
廊下に洗面を置いてもいい。
4畳半洋室2部屋、和室1部屋
適材適所に少しずつ収納が欲しい
LDKを中心にLDKを通って全ての部屋が繋がる平屋にしたみたいな間取りが理想です。
子供二人の4人家族です。
開放的に北側でも、明るく、
便利な回遊動線の間取りを考えて頂きたいです。
宜しくお願い申し上げます。
