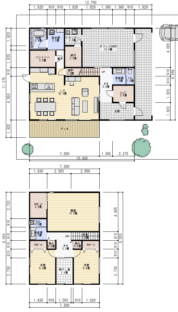
敷地の大きさ:北道路 15m×20m
建物の規模: 52坪 5LDK
2階建て
必要な部屋:
1階
玄関ホール 5畳
シューズクローク 2.5畳
リビングダイニングキッチン 22畳
パントリー収納 3畳
SOHO ホームオフィス 13畳
脱衣室 2.5畳 浴室 2.5畳
トイレ 1畳 洗面室 1.5畳
2階
洋室 6畳 クロゼット 2室
寝室 13畳 ウォークインクロゼット 3畳
トイレ 1畳 洗面 1.5畳
間取りの要望:
ホームオフィス付きの間取りにしたい
リビングダイニングキッチンは広くしたい
リビングの一角に学習コーナーを設ける
玄関のそばに手洗いができるスペースを作る
トイレの玄関付近に作りトイレと洗面台を近づける
玄関の所にホール側と玄関土間から出入りできる
シューズクロークを設ける
階段は独立階段で2階へ上がる
ホームオフィスにはミニキッチンをつける
キッチンは対面式キッチンにする
パントリー収納をキッチンのそばに作る
脱衣室と浴室をキッチンのそばに作りたい
寝室はひろめにしたい
寝室にウォークインクローゼットをつける
2階にも洗面とトイレを作る
子供部屋の想定の部屋は南側にする
バルコニーはいらない
部屋干しできるスペースを2階に設ける
住宅の玄関とホームオフィスの玄関を開ける
道路側に駐車場を作る
家族構成: 夫婦 2人 子供2人
