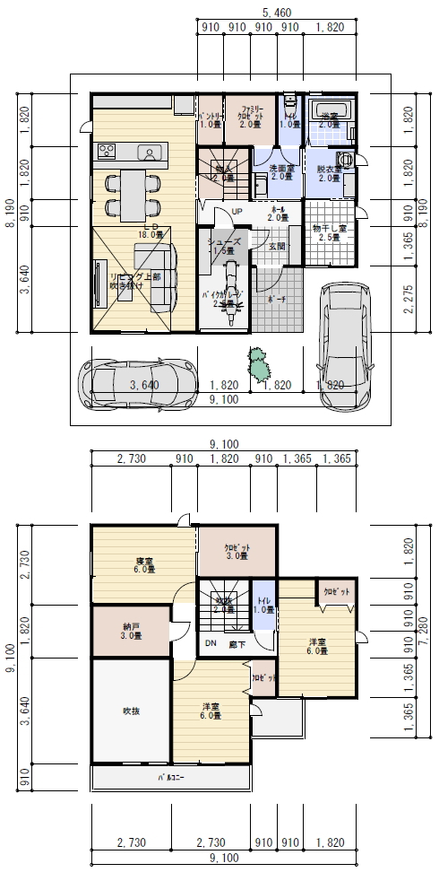
土地の大きさ 間口約12M 奥行き約11M 土地は40.74坪
接道 南、東道路
用途地域 わかりません2階建ての家に囲まれています。
壁面後退 わかりません
階数 2階建て
建物規模 35坪
必要な部屋
建物は2階建て33坪はほしい
1階にLDK,パントリー,
ウォークインファミリークローゼットが欲しいです
狭くてもいいので,趣味のバイクガレージが欲しいです。
シューズクローゼットがほしいです
2階は夫婦の寝室1室6畳以上にウォークインクローゼット
子ども部屋6畳程度・クローゼットありが1室
布団など季節のものがしまえる納戸が欲しいです
できればサンルームが欲しいです
(工業地域で洗濯物が外干しできない)
駐車場は2台分必要(並んでいなくてもよい)
間取りの要望
キッチンは対面キッチン
ファミリークローゼットが洗面脱衣所から近いところ
洗面脱衣所に物干しコーナーをつけたい
できれば洗面と脱衣所が分かれてほしい
廊下をできるだけ減らして部屋を広くしたい
できれば吹き抜けがほしい
家族構成
家族は夫婦と子どもが一人の3人家族です。
↑吹き抜けのない間取りシュミレーション
