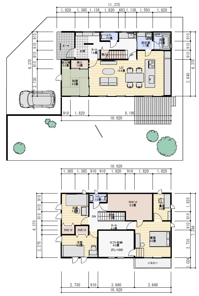
洗面と脱衣を分けて階段の登り口を奥に配置した案
玄関付近に階段の登り口を配置して洗面と脱衣を一種にしたプラン
※土地の大きさ 18M×14M
※接道 南西 北西
※階数 2階建て
※建物の規模 38坪 (要望は35〜40坪程度)
※必要な部屋
建物は2階建て35〜40坪程度の予定です。
あくまで、数字は大体ですので間取りによって可変しても構いません。
以下、希望する部屋です。
一階
・LDK20畳位
・LDKに隣接する和室4.5畳位
・水回りは回遊導線
・手洗い・脱衣所は一緒にして、下着の収納やミニ家事スペースが欲しい
・リビング部にハーフ吹き抜けを希望しています。
・できればですが、リビング収納が欲しいです。
二階
・子供部屋が2部屋(畳数は、6としていますが、
そこまで必要か悩んでいます。
・広めのファミリークローゼットが欲しいです。
・寝室が1室8畳ほど
・寝室に隣接してなくてもよいので、書斎が欲しいです。
・また、ハーフ吹き抜けの上の部分に屋根裏部屋を作り、
収納部分を確保したいです。
間取の要望
・日当たりの良い南側に明かりとりの窓が欲しいです。
しかし、最低限ZEH基準はクリアしたいので、悩みどころではあります。
窓は、全てapw330の予定です。LDKのみ、トリプルサッシにしました。
・キッチンの形にこだわりはありません。
ですが、キッチン収納は多めに欲しいです。
今は2700mmのカップボードを入れています。
・リビング階段にしようか、迷っております。
※家族構成
家族は妻との2人で、子どもは2人を計画しています。
